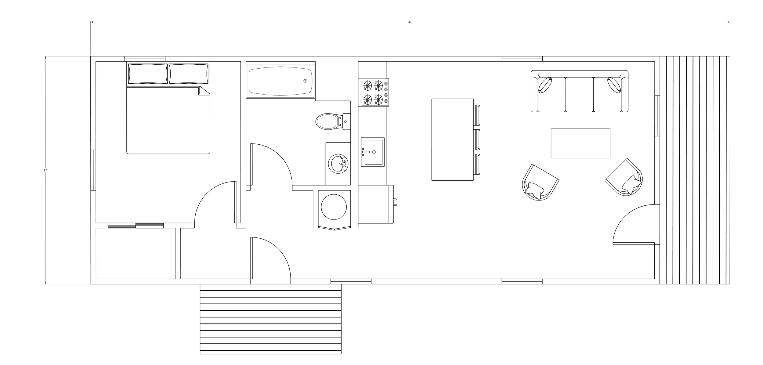
Linea (1 bed / 1 bath)
Take a look at a selection of our recent projects, crafted with care and designed to make an impact. Each one tells a story of creativity, collaboration, and results.
Take a look at a selection of our recent projects, crafted with care and designed to make an impact. Each one tells a story of creativity, collaboration, and results.